vintage authentic intierior (2020), Nijmegen

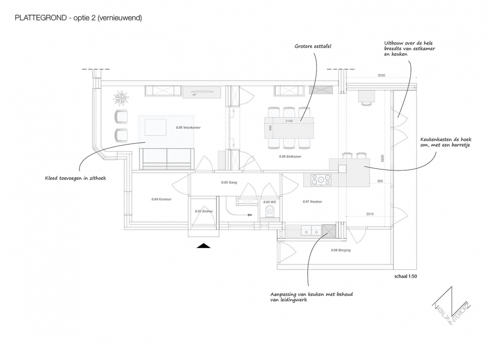
Een interieurontwerp voor een jaren 30 woning met een persoonlijk kleur- en stijladvies en 3 opties voor een uitbreiding van de begane grond.

|ENG|
An interior design for a 1930s house with a personal color and style advice and 3 options for an extension of the ground floor.

 
 
https://nataljavanzoggel.com/files/gimgs/th-34_20003_Interieurontwerp-Loes en Michel3.jpg
 
 
https://nataljavanzoggel.com/files/gimgs/th-34_20003_Interieurontwerp-Loes en Michel4.jpg
 
 
https://nataljavanzoggel.com/files/gimgs/th-34_20003_Interieurontwerp-Loes en Michel5.jpg
 
 
https://nataljavanzoggel.com/files/gimgs/th-34_20003_Interieurontwerp-Loes en Michel6.jpg
 
 
https://nataljavanzoggel.com/files/gimgs/th-34_20003_Interieurontwerp-Loes en Michel7.jpg