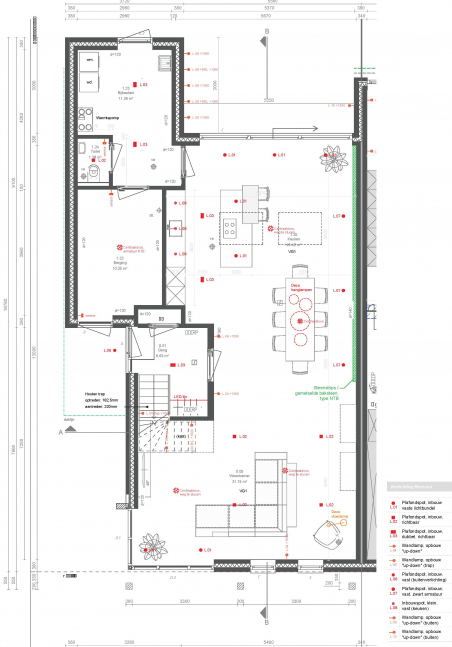
lighting plan (2018) Uden

Een lichtplan voor een nieuwbouw woonhuis.

| ENG |
A lighting plan for a newly built house

 
 
https://nataljavanzoggel.com/files/gimgs/th-29_18002_Lichtplan_DO-01_Page_03 BEWERKT.jpg
 
 
https://nataljavanzoggel.com/files/gimgs/th-29_18002_Lichtplan_DO-01_Page_05-BEWERKT.jpg
 
 
https://nataljavanzoggel.com/files/gimgs/th-29_18002_Lichtplan_DO-01_Page_06 BEWERKT.jpg
 
 
https://nataljavanzoggel.com/files/gimgs/th-29_18002_Lichtplan_DO-01_Page_07 BEWERKT.jpg
 
 
https://nataljavanzoggel.com/files/gimgs/th-29_18002_Lichtplan_DO-01_Page_08 BEWERKT.jpg
 
 
https://nataljavanzoggel.com/files/gimgs/th-29_18002_Lichtplan_DO-01_Page_09 BEWERKT.jpg