modern industrial interior (2017-2018), Uden

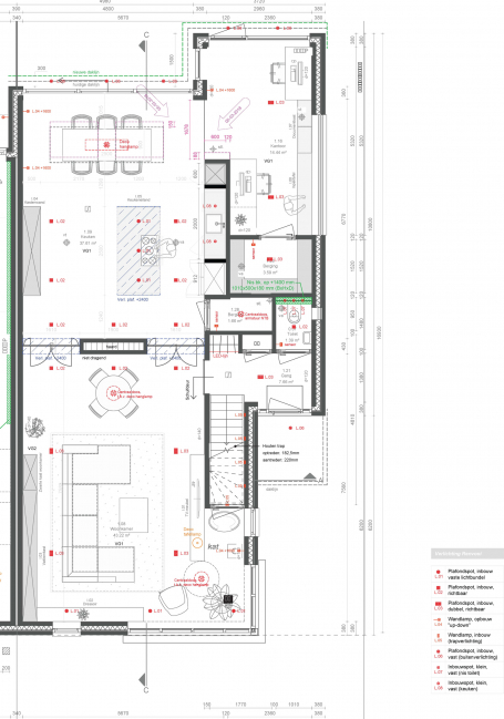
Ontwerp voor de begane grond van een nieuwbouw woonhuis: sfeer, indeling en lichtplan.

| ENG |
Interior design for the ground floor of a newly built house: atmosphere, lay-out and lighting plan.

 
 
https://nataljavanzoggel.com/files/gimgs/th-26_16005_SenyaPim_VO-01_Page_3_v2.jpg
 
 
https://nataljavanzoggel.com/files/gimgs/th-26_16005_SenyaPim_VO-01_Page_4 bewerkt_v2.jpg
 
 
https://nataljavanzoggel.com/files/gimgs/th-26_16005_SenyaPim_VO-01_Page_5 bewerkt.jpg
 
 
https://nataljavanzoggel.com/files/gimgs/th-26_16005_SenyaPim_VO-01_Page_6 bewerkt.jpg
 
 
https://nataljavanzoggel.com/files/gimgs/th-26_18001_Lichtplan_DO-01_Page_04 bewerkt.jpg
 
 
https://nataljavanzoggel.com/files/gimgs/th-26_18001_Lichtplan_DO-01_Page_06 bewerkt.jpg
 
 
https://nataljavanzoggel.com/files/gimgs/th-26_18001_Lichtplan_DO-01_Page_07 bewerkt.jpg
 
 
https://nataljavanzoggel.com/files/gimgs/th-26_18001_Lichtplan_DO-01_Page_08 bewerkt.jpg